Loading...
999 000 €Honoraires à la charge du vendeur

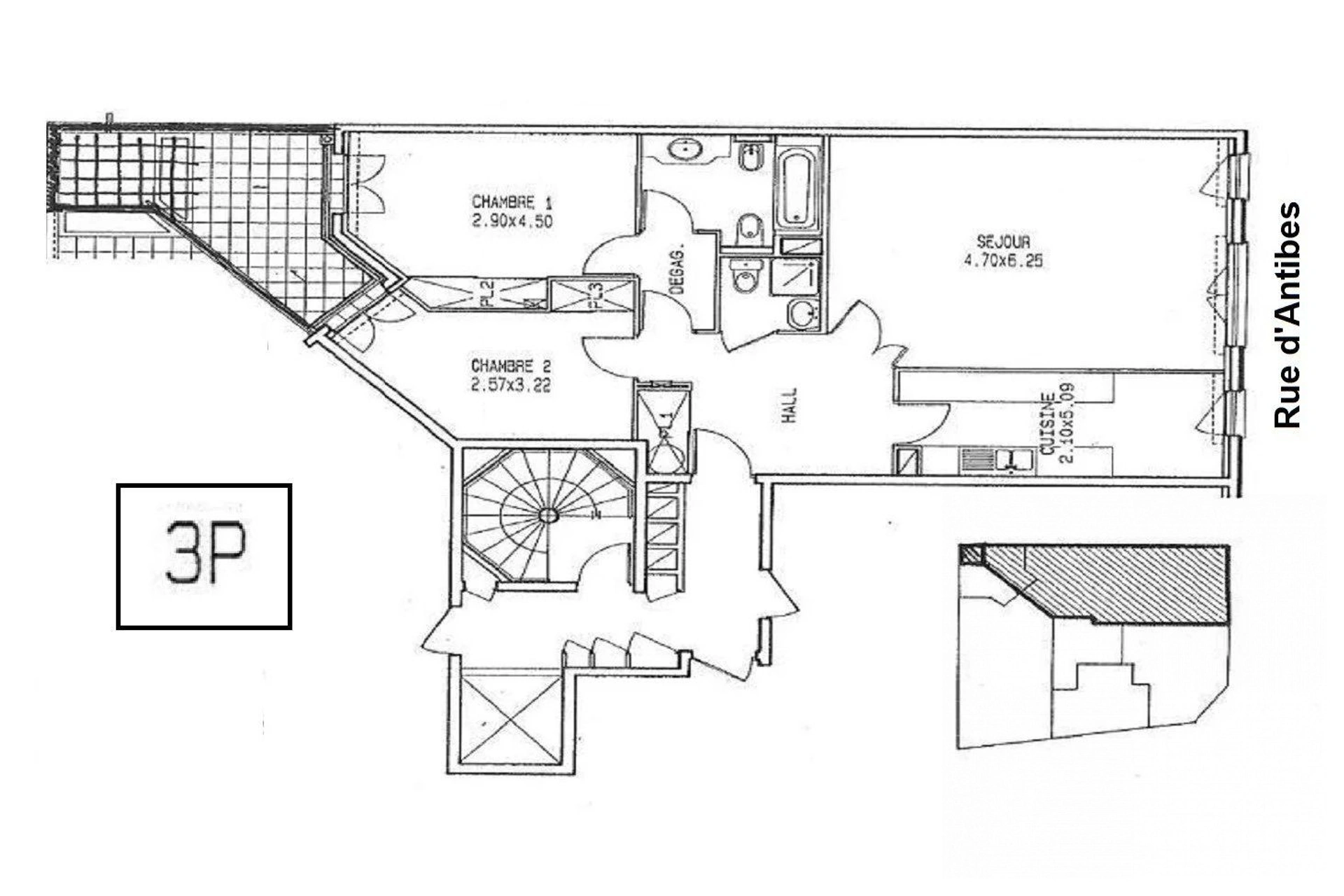
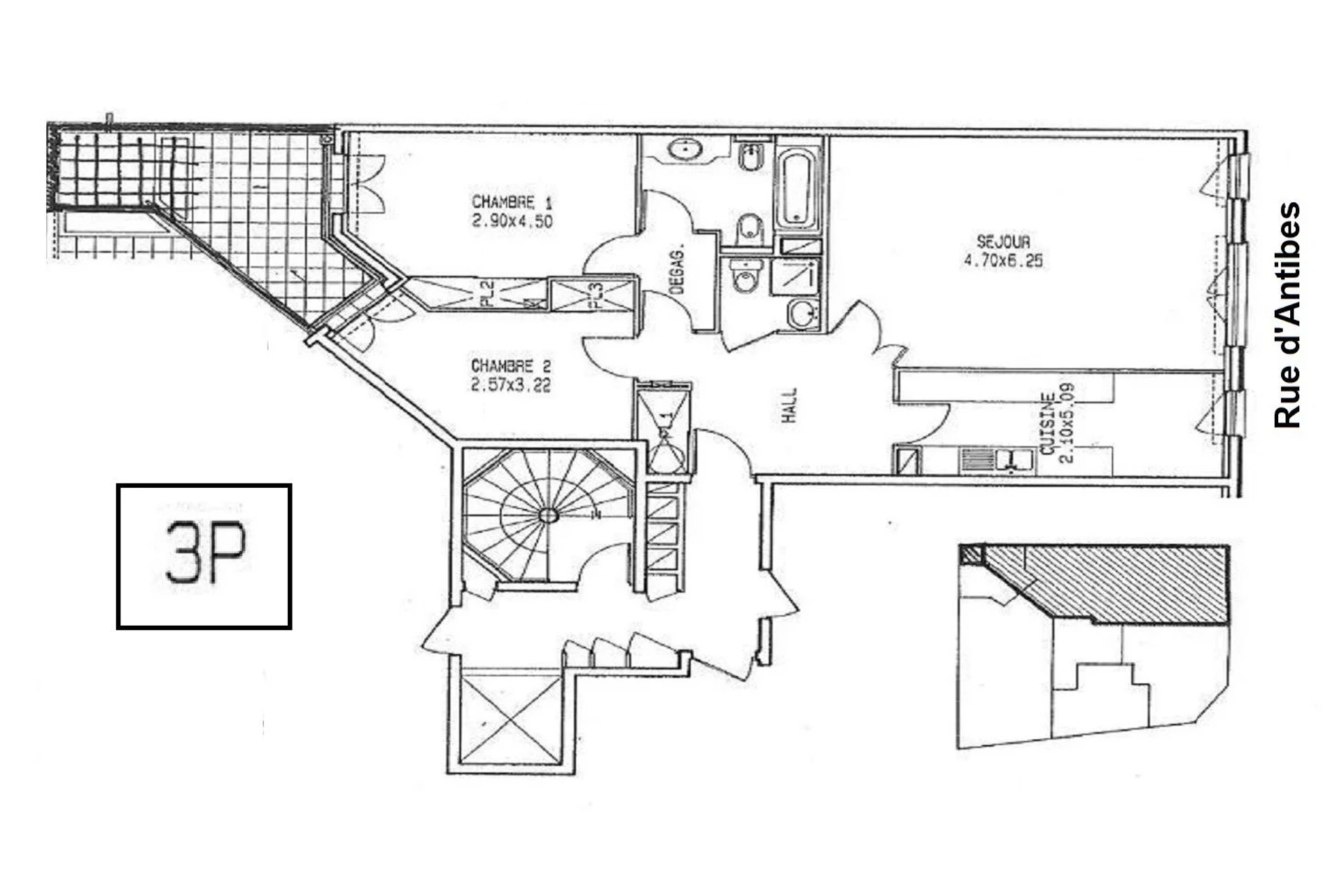
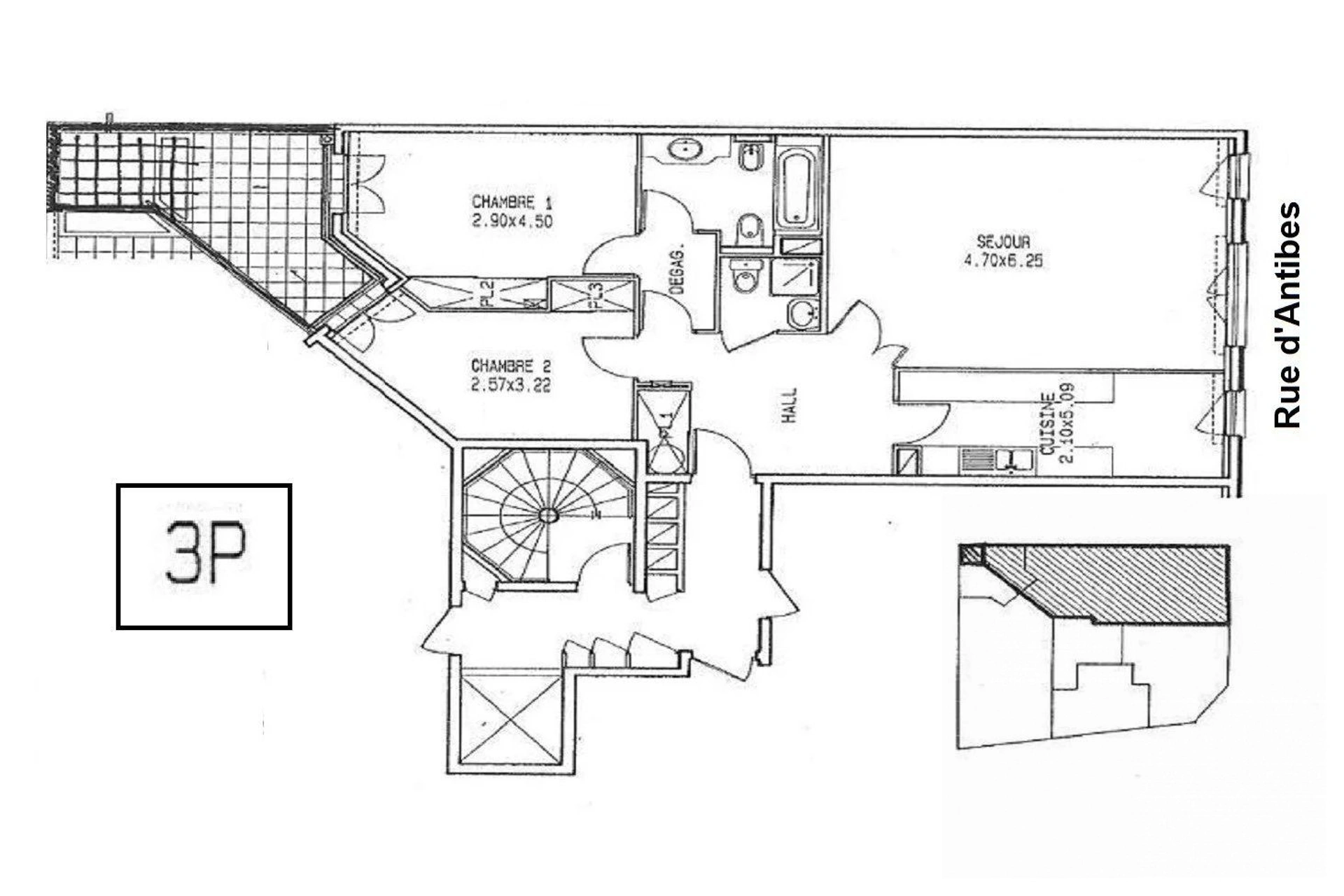
Appartement de Luxe avec Terrasse Rue d'Antibes - 06400 Cannes - Réf 86489066

  • 3 pièce(s)
  • 86m²

Description

Très bel appartement 3 pièces, 86 m2+ 12 m2 terrasse. Situé dans une résidence récente de standing au coeur de la rue d'Antibes, 2 chambres, 2 salles de bains, double séjour, cuisine, exposition sud.
Le grand double séjour de 30 m² et la spacieuse cuisine indépendante avec coin petit déjeuner bénéficient d'une vue directe sur la partie la plus prestigieuse de la rue commerçante de Cannes - la rue d'Antibes. L'appartement bénéficie d'un grand hall d'entrée avec une grande placard. Sol en marbre de Carrare. Les chambres sont indépendantes du séjour, très calmes et reliées par une grande porte-fenêtre à la terrasse privative donnant sur cour. La salle de bain principale est attenante à la chambre principale.
Prestations: Ascenseur, Double vitrage, Climatisation, Calme, Porte blindée, Résidentiel.

L'appartement est idéal pour vivre dans le meilleur quartier de Cannes, pour des vacances et/ou un investissement locatif de vacances et les nombreux congrès internationaux organisés à Cannes, tels que le Festival du Film, le Mipim, le Mipcom, le Miptv, les Lions etc., qui rapportent d'excellents revenus annuels.
En outre, pour un usage professionnel, médical, juridique ou notarial, compte tenu de la position très centrale, de l'immeuble prestigieux et du règlement de copropriété autorisé pour les activités professionnelles.
Caractéristiques et commodités

Caractéristiques

  • Pièce(s)3
  • Surface86 m²

Attributs

  • Eau chaudeChauffe-eau
  • Type de chauffageClimatisation
  • Mode de chauffageElectrique
Aspects financiers
Estimation des coûts annuels d'énergie du logement
Entre 600 € et 820 € par an
Montant estimé des dépenses annuelles d’énergie pour un usage standard : sous forme de fourchette avec indication de la fourchette.
Prix moyens des énergies indexés au 1er janvier 2021 (abonnements compris)
Bilan énergétique
DPE_ passoire énergétique logement extrêmement performant logement extrêmement peu performant consommation (énergie primaire) 104 kWh/m²/an émissions* 3 kgCO2/m²/an
DPE_ * Dont émissions de gaz à effet de serre peu d'émissions de CO2 émissions de CO2 très importantes 3 kgCO2/m²/an
Ce bien fait parti d'une co-propriété de 78 lots. Les charges sont de 8280€ par an. Aucune procédure en cours.
eXp GLOBAL FRANCE, société au capital de 500 000 euros. Siège social : 266 Place Ernest Granier 34000 Montpellier. N° de TVA intracommunautaire : FR71890710700. RCS MONTPELLIER immatriculé(e) 890710700.
Carte T : 3402 2020 000 045 086. Lieu de délivrance : CCI de l'Hérault. Absence de Garantie financière RCP n° 6944930704 (AXA France IARD S.A. 313 Terrasse de l'Arche 92727 Nanterre Cedex) eXp Global France ne détient ni fonds, ni effet, ni valeur.
Conformément aux articles L611-1 et suivants et R612-1 et suivants du Code de la consommation, le consommateur est informé qu’il a la possibilité de saisir un ou notre médiateur de la consommation, à savoir MEDIMMOCONSO situé 1, Allée du Parc de Mesemena - Bât A - CS 25222 - 44505 LA BAULE CEDEX - site : https://medimmoconso.fr/adresser-une-reclamation
Barème d'honoraires

Apprenez-en plus sur le bien et la région avec notre expert local

Contact

Inscrivez-vous pour recevoir les dernières informations sur les propriétés et des informations détaillées sur les nouvelles inscriptions. Contactez-nous par téléphone ou par courriel pour rejoindre notre base de données.
Loading...
Les informations recueillies sur ce formulaire sont enregistrées dans un fichier informatisé par eXp Luxury pour gérer votre demande de contact. Elles sont conservées pour la durée nécessaire à la gestion de la relation client dans le respect des prescriptions légales applicables et sont destinées au responsable de la publication de ce site : eXp Luxury.
Conformément à la loi « informatique et libertés », vous pouvez exercer votre droit d'accès aux données vous concernant et les faire rectifier en contactant eXp Luxury info@expfrance.fr ou en utilisant ce formulaire. Nous vous informons de l’existence de la liste d'opposition au démarchage téléphonique « Bloctel », sur laquelle vous pouvez vous inscrire ici : https://www.bloctel.gouv.fr/