Loading...
3 700 000 €Honoraires à la charge du vendeur

PARIS XVI - Quartier Chaillot - Triplex d'exception 213m2 - 75016 Paris 16ème - Réf 86395257

  • 6 pièce(s)
  • 3 chambre(s)
  • 213m²

Description

Esprit maison pour cet appartement atypique de 213m2, situé dans une résidence semi-récente de grand standing.

L'entrée dans les lieux se fait au choix, soit par le magnifique hall de la résidence, soit par un accès indépendant.

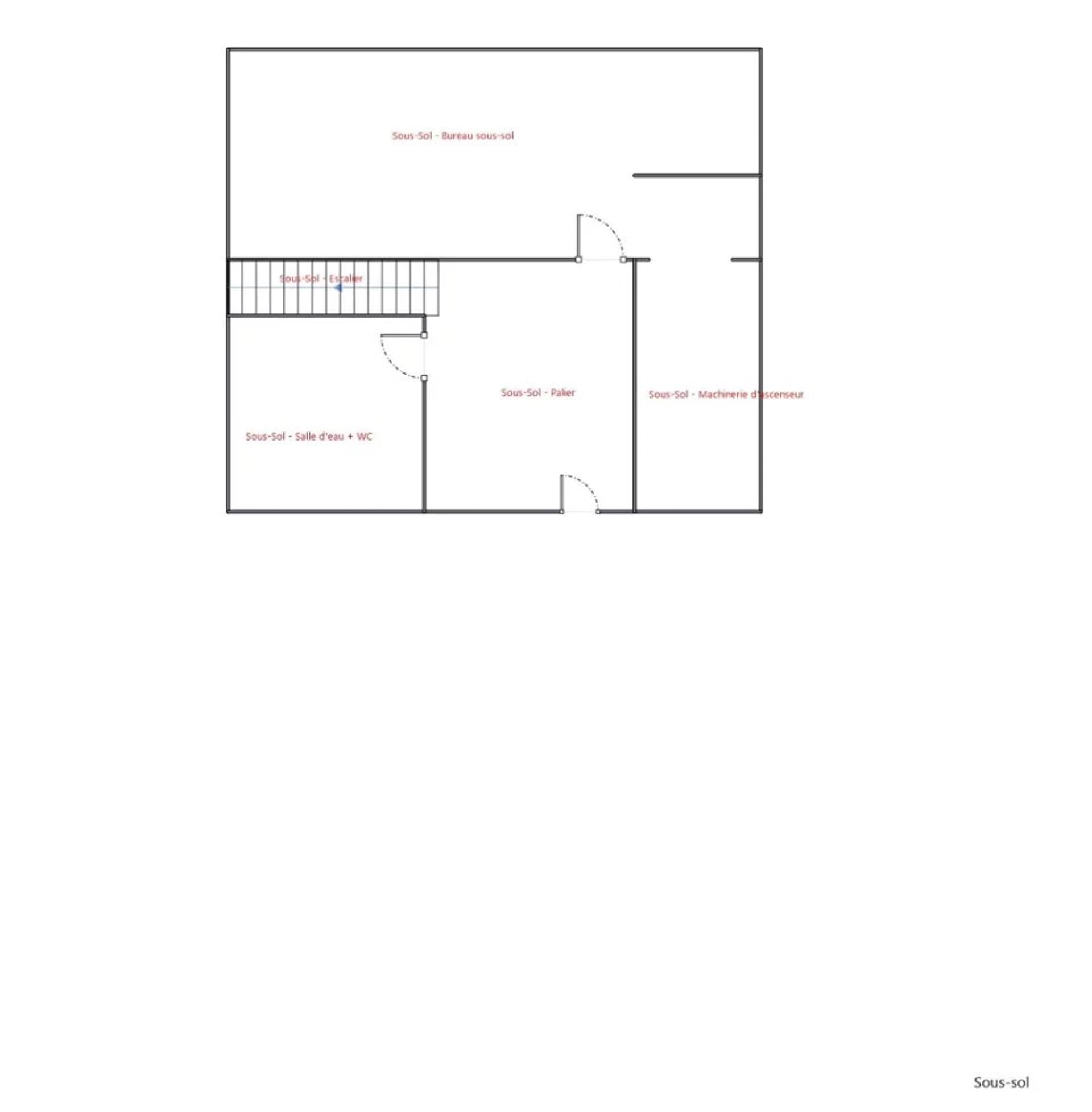
Le rez-de-chaussée dispose d'une entrée avec dressing, d'un bureau, d'un toilette invité, ainsi que d'une cuisine ouverte sur salle à manger.

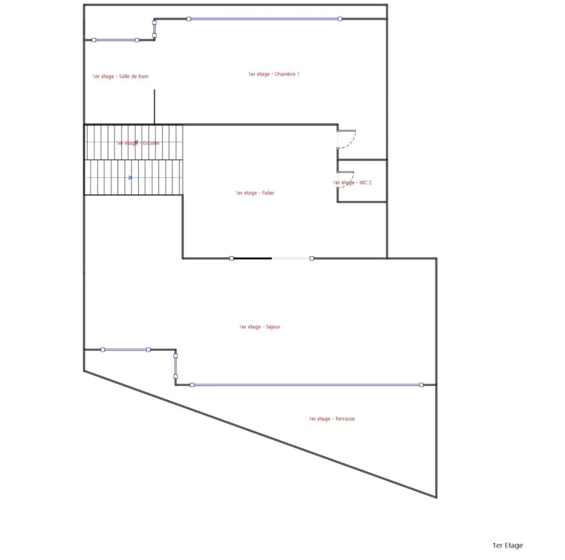
Le premier étage accueille un séjour convivial s'ouvrant sur une cour privative et intimiste, idéale pour des déjeuners à l'abri des regards. Une chambre de maitre avec sa salle de bain privative complète cet étage.

Le deuxième et dernier étage du bâtiment, dispose d'une grande chambre avec sa salle d'eau privative, d'une chambre supplémentaire ainsi que d'un bureau. Une salle d'eau indépendante et un toilette sont également présents à cet étage.

Chaque chambre bénéficie d'un espace extérieur sur grand balcon.
L'appartement est au calme, le bâtiment ne disposant pas de voisins aux étages supérieurs.

L'appartement est traversant et s'ouvre à la fois sur les jardins de la résidence et sur une petite rue peu passante.

L'appartement dispose d'un ascenseur privatif desservant les étages.

Un bien rare et polyvalent pouvant accueillir activité libérale, bureaux, showroom ou résidence familiale.
Pour les amoureux de biens atypiques, en quête de confort et d'indépendance. Un lieu inspirant ayant été la résidence de grands artistes français.


Possibilité d'acquérir deux grandes places de parking mitoyennes, dans la résidence.
Caractéristiques et commodités

Caractéristiques

  • Pièce(s)6
  • Chambre(s)3
  • Surface213 m²

Attributs

  • Eau chaudeChaudière
  • Type de chauffageRadiateur
  • Année de construction1978
Aspects financiers
Estimation des coûts annuels d'énergie du logement
Entre 3850 € et 5220 € par an
Montant estimé des dépenses annuelles d’énergie pour un usage standard : sous forme de fourchette avec indication de la fourchette.
Prix moyens des énergies indexés au 1er janvier 2021 (abonnements compris)
Bilan énergétique
DPE_ passoire énergétique logement extrêmement performant logement extrêmement peu performant consommation (énergie primaire) 237 kWh/m²/an émissions* 22 kgCO2/m²/an
DPE_ * Dont émissions de gaz à effet de serre peu d'émissions de CO2 émissions de CO2 très importantes 22 kgCO2/m²/an
Ce bien fait parti d'une co-propriété de 447 lots. Les charges sont de 39600€ par an. Aucune procédure en cours.
eXp GLOBAL FRANCE, société au capital de 500 000 euros. Siège social : 266 Place Ernest Granier 34000 Montpellier. N° de TVA intracommunautaire : FR71890710700. RCS MONTPELLIER immatriculé(e) 890710700.
Carte T : 3402 2020 000 045 086. Lieu de délivrance : CCI de l'Hérault. Absence de Garantie financière RCP n° 6944930704 (AXA France IARD S.A. 313 Terrasse de l'Arche 92727 Nanterre Cedex) eXp Global France ne détient ni fonds, ni effet, ni valeur.
Conformément aux articles L611-1 et suivants et R612-1 et suivants du Code de la consommation, le consommateur est informé qu’il a la possibilité de saisir un ou notre médiateur de la consommation, à savoir MEDIMMOCONSO situé 1, Allée du Parc de Mesemena - Bât A - CS 25222 - 44505 LA BAULE CEDEX - site : https://medimmoconso.fr/adresser-une-reclamation
Barème d'honoraires

Apprenez-en plus sur le bien et la région avec notre expert local

Nathalie FREIRE

Nathalie FREIRE

Contact

Inscrivez-vous pour recevoir les dernières informations sur les propriétés et des informations détaillées sur les nouvelles inscriptions. Contactez-nous par téléphone ou par courriel pour rejoindre notre base de données.
Loading...
Les informations recueillies sur ce formulaire sont enregistrées dans un fichier informatisé par eXp Luxury pour gérer votre demande de contact. Elles sont conservées pour la durée nécessaire à la gestion de la relation client dans le respect des prescriptions légales applicables et sont destinées au responsable de la publication de ce site : eXp Luxury.
Conformément à la loi « informatique et libertés », vous pouvez exercer votre droit d'accès aux données vous concernant et les faire rectifier en contactant eXp Luxury info@expfrance.fr ou en utilisant ce formulaire. Nous vous informons de l’existence de la liste d'opposition au démarchage téléphonique « Bloctel », sur laquelle vous pouvez vous inscrire ici : https://www.bloctel.gouv.fr/